B
uildersBD
Home Page
Main Page
How to use
Short Circular Column
Short Circular Column
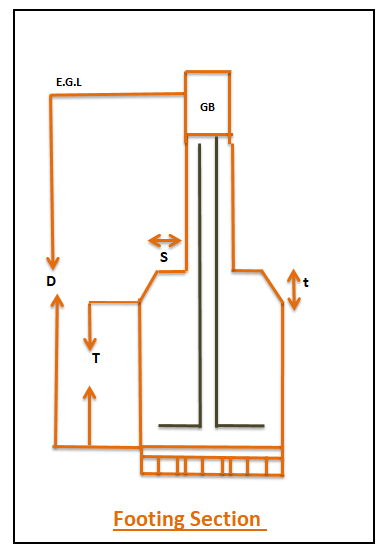
Description
WF-1
WF-2
WF-3
WF-4
WF-5
WF-6
WF-7
WF-8
WF-9
WF-10
WF-11
WF-12
WF-13
WF-14
WF-15
Column Nos
Nos
Nos
Nos
Nos
Nos
Nos
Nos
Nos
Nos
Nos
Nos
Nos
Nos
Nos
Nos
Column Dia (mm)
"
"
"
"
"
"
"
"
"
"
"
"
"
"
"
Clear Cover (inh)
'
'
'
'
'
'
'
'
'
'
'
'
'
'
'
Short Column Height, H (ft)
'
'
'
'
'
'
'
'
'
'
'
'
'
'
'
Rcc casting Ratio
Cement 1Sqf
Sand
Stone
Total
Short Column Rebar Calculation
Description
WF-1
WF-2
WF-3
WF-4
WF-5
WF-6
WF-7
WF-8
WF-9
WF-10
WF-11
WF-12
WF-13
WF-14
WF-15
Large Dia
Rebar Size (mm)
MM
MM
MM
MM
MM
MM
MM
MM
MM
MM
MM
MM
MM
MM
MM
Rebar Nos
Nos
Nos
Nos
Nos
Nos
Nos
Nos
Nos
Nos
Nos
Nos
Nos
Nos
Nos
Nos
Small Dia
Rebar Size (mm)
MM
MM
MM
MM
MM
MM
MM
MM
MM
MM
MM
MM
MM
MM
MM
Rebar Nos
Nos
Nos
Nos
Nos
Nos
Nos
Nos
Nos
Nos
Nos
Nos
Nos
Nos
Nos
Nos
Development length (inh)
'
'
'
'
'
'
'
'
'
'
'
2'
'
'
'
Spiral Ring
Rebar Dia (mm)
MM
MM
MM
MM
MM
MM
MM
MM
MM
MM
MM
MM
MM
MM
MM
Specing (inch) ("C/C)
"C/C
"C/C
"C/C
"C/C
"C/C
"C/C
"C/C
"C/C
"C/C
"C/C
"C/C
"C/C
"C/C
"C/C
"C/C
Houck lenght (inch)
"
"
"
"
"
"
"
"
"
"
"
"
"
"
"
Spiral Ring-1
lenght (inch)
'
'
'
'
'
'
'
"
'
'
'
'
'
'
'
Spiral Ring-2
Lenght (inch)
'
'
'
'
'
'
'
'
'
'
'
27
'
'
'
'
Mat Foundation Estimated And Price
Description
Quantity
Wastage Material %
Quantity (Wastage Add)
Market Rate
Amount
Cement (Bag)
Bag
%
Bag
৳
৳
Sand (CFT)
CFT
%
CFT
৳
৳
Stone/Bricks Chips (CFT)
CFT
%
CFT
৳
৳
Brick Nos
Nos
%
Nos
৳
৳
Rebar (Ton)
Ton
%
Ton
৳
৳
Formwork
CFT
%
CFT
৳
৳
Total RCC Casting
CFT
%
CFT
৳
৳
Total Cost
৳
Reinforcement
Size
Quantity
MM
KG
MM
KG
MM
KG
MM
KG
MM
KG
MM
KG
MM
KG
MM
KG
MM
KG
Submit